0120-750-282
定休日:水曜日、年末年始
営業時間:9:00~18:00
ハウスドゥの売りたい
ハウスドゥの店舗情報
お客様がお気に入りに登録された物件を最大30物件まで、30日間保存できます。
51 件 / 全851件
チェックした物件をまとめて
フルリノベーション再生住宅?
1,700万円
NEW
所在地
交通
水島臨海鉄道 『弥生駅』 まで徒歩5分南緑町 まで徒歩6分
★倉敷駅徒歩10分!11階で眺望良好!★
2,890万円
JR山陽本線 『倉敷駅』 まで徒歩10分
★3LDKリホーム戸建て住宅 LDK20帖★
2,680万円
JR宇野線 『茶屋町駅』 まで徒歩37分
●スーパー、ドラッグストア、ホームセンター、支所、駅が近く生活に便利
1,850万円
JR本四備讃線 『茶屋町駅』 まで徒歩11分
●小中学校、コンビニ、病院も1km以内に揃っており生活しやすいです
999万円
水島臨海鉄道 『常盤駅』 まで徒歩40分両備バス中浜バス停 まで徒歩9分
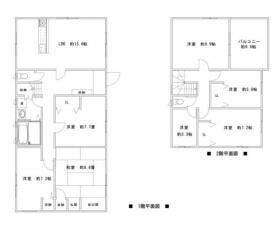
★7LDK・リフォームした綺麗なお部屋で親子孫3世代の共同生活もできる二世帯向きの物件★
1,898万円
値下げ物件
JR山陽本線 『中庄駅』 まで徒歩53分
店頭ではHPに掲載できない物件を併せて 1,200件をご案内できます!
店頭で
ご希望にマッチした物件や、新着・値下げ情報を 即日メールにてお届けします!
Webで