新築一戸建て

倉敷市中島の新築戸建[物件特徴]

  NEW

掲載情報更新日:2026年04月13日 次回更新予定日:2026年04月27日

4,380万円

月々のお支払い例


万円


計算

※ 月々のお支払例は目安の試算となりますので、金融機関や商品によって借入金額の条件は異なります。詳しくは店舗までお問合わせください。

所在地

倉敷市中島

交通

JR山陽本線『西阿知』 徒歩18分 (約1440m)
両備バス『中島口』 徒歩10分 (約800m)

★直線美が際立つ、洗練されたモダン邸宅★
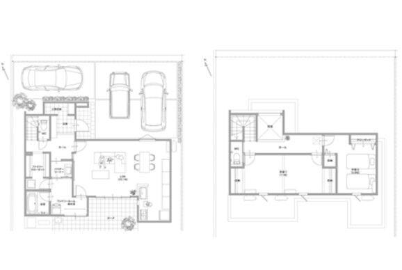
【間取り】

【間取り】

【外観】
完成イメージ

【外観】
完成イメージ

物件の特徴

主な設備

オール電化

上水道

公営水道

下水道

公共下水

食器洗浄乾燥機

IHクッキングヒータ

コンロ三口

グリル

システムキッチン

バス1坪以上

追焚機能

浴室暖房

浴室乾燥機

トイレ2箇所

温水洗浄便座

室内洗濯機置場

室内物干機

エアコン2基

照明器具

家具付

省エネ給湯器

モニタ付インターホン

LDK20畳以上

吹抜

複層ガラス

全室フローリング

24時間換気システム

ウォークインクローゼット

床下収納

全居室収納

シューズインクローク

主な特徴

地盤調査済

2沿線利用可

駅まで平坦

小学校徒歩10分以内

スーパーが近い

閑静な住宅街

市街地が近い

陽当り良好

2階建

整形地

区画整理地内

デザイナーズ物件

フラット35Sに対応

アピールポイント

市街地にアクセスしやすい閑静な住宅街で、子育てしやすい環境です。
駐車場3台以上可(車種・駐車方法による)

物件概要

価格 4,380万円 間取り 3LDK
物件種別 新築一戸建て
所在地 岡山県倉敷市中島
アクセス JR山陽本線『西阿知』 徒歩18分 (約1440m)
両備バス『中島口』 徒歩10分 (約800m)
建物面積 公105.25㎡ 駐車場 あり
築年月 2026年(令和8年)06月予定 建築確認 2025岡セ確建第002000号
建物構造 木造 2階建 工法
主要採光 バルコニー
保証・評価
土地面積 公158.66㎡(47.99坪) 接道 北側(公道)幅 約5.0m
私道 セットバック
地目 宅地 地勢
権利 所有権
都市計画 市街化区域
用途地域 1種低層
建ぺい/容積率 42% / 66% 土地国土法
許可番号 建築基準法
法令制限
小学区 中島小学校 徒歩7分 (約540m) 中学区 倉敷第一中学校 徒歩12分 (約900m)
現況 建築中 引渡 期日指定:2026年07月下旬
その他費用
周辺環境 西阿知駅 徒歩17分 (約1340m)
倉敷市立中島小学校 徒歩7分 (約500m)
倉敷市立第一中学校 徒歩13分 (約990m)
倉敷市立中島幼稚園 徒歩4分 (約260m)
遍照小規模保育園 徒歩15分 (約1140m)
天満屋ハピーズ倉敷中島店 徒歩11分 (約840m)
ファミリーマート 倉敷中島南店 徒歩3分 (約230m)
スーパードラッグひまわり中島店 徒歩7分 (約540m)
倉敷紀念病院 徒歩12分 (約900m)
ユーホー倉敷中島店 徒歩16分 (約1260m)
備考 ★直線美が際立つ、洗練されたモダン邸宅★
市街地にアクセスしやすい閑静な住宅街で、子育てしやすい環境です。
駐車場3台以上可(車種・駐車方法による)
物件番号 4649957 取引態様 媒介

電話で問合せ

通話料無料

0120-750-282

定休日:水曜日、年末年始
営業時間:9:00~18:00

物件番号をお伝えください

物件番号

4649957

【取扱い店舗】ハウスドゥ 倉敷駅東取扱い店舗情報
ナビ女性画像

【取扱い店舗情報】

ハウスドゥ 倉敷駅東
取扱会社:株式会社アールイープロジェクト
所在地:〒710-0003 岡山県倉敷市平田681-4
フリーダイヤル:0120-750-282
電話番号:086-424-6400 FAX:086-424-6401
免許番号:岡山県知事(2)第5855号
所属団体:(公社)全日本不動産協会会員
(公社)不動産保証協会会員
中国地区不動産公正取引協議会加盟
定休日:水曜日、年末年始
営業時間:9:00~18:00

もっとたくさん物件がみたい!という方へ

店頭で

店頭ではHPに掲載できない物件を併せて
1,142件をご案内できます!

Webで

ご希望にマッチした物件や、新着・値下げ情報を
即日メールにてお届けします!

ページトップ

ページトップ